Контакты:
Амазонка бай
Телефоны:
Режим работы:
  • Пн-Пт: 09:00 - 18:00
  • Сб-Вс: 24/7
Принимаем заказы через корзину круглосуточно
Адрес и схема проезда:
  • г Минск, ул.Горовца 32
  • e-mail: zakaz@amazonka.by
Посмотреть схему проезда
Телефоны:
Амазонка бай
Каталог товаров Меню
Список товаров

Газовый котел Immergas NIKE STAR 24 4R

  • Вес: 0 кг.
Артикул: 1239497
  • 0 BYN Выгода 0 BYN
  • 0 BYN
    Под заказ 3 дня

Предложите свою цену

dollar-account
Нашли дешевле?
Гарантия 60 месяцев
  • Характеристики

    Производитель   Immergas
    Площадь обогрева, м²   240
    Страна   Словакия
    Гарантия мес   60
    Тип   Двухконтурный
    Установка   Настенный
    Камера сгорания   открытая атмосферная
    Мощность кВт   24
    Циркуляционный насос   есть
  • Описание

    Отопительный котел Immergas NIKE Star 24 4R – газовый настенный отопительный аппарат, предназначенный для отопления и приготовления горячей воды. Отвод продуктов сгорания происходит принудительным путем через специальную систему дымоудаления. В подарок идет комплект подключения (самопромывной фильтр, комнатный термостат, фильтр для водоснабжения).
    Тип котлаГазовый
    Тип газового котлаДвухконтурный
    Способ установкиНастенный
    ПроизводительImmergas
    Камера сгоранияоткрытая
    Площадь обогрева, м2240
    Максимальная мощность (кВт)24
    Диапазон регулировки мощности, кВт9,0-24
    КПД, %89,8
    Количество теплообменников, шт.1
    Материал первичного теплообменникаМедь
    Расширительный бак, л6
    Максимальное потребление газа, м3/ч2,74
    Потребляемая мощность, Вт100
    Циркуляционный насосДа
    Диаметр подключения дымохода, мм130
    Подключение патрубка газа, дюйм3/4
    Подключение контура отопления, дюйм3/4
    Подключение контура ГВС, дюйм1/2
    Максимальная температура в контуре отопления, °C90
    Максимальная температура горячей воды, °C60
    Максимальное давление в контуре ГВС, бар10
    Давление в контуре отопления, бар3
    Производительность горячего водоснабжения, л/мин(?T 30°C)=10,4
    Вес, кг26,1
    Гарантия, мес60
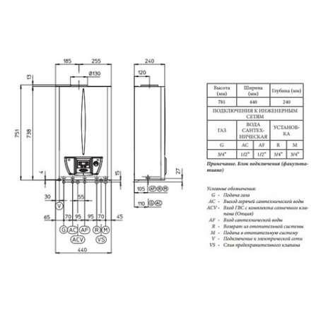
    Размер (ВхШхГ)756х440х240
    Завод производительIMMERGAS EUROPE s.r.o., Словакия, Priemyselna Ulica 4789, SK-05951 Poprad - Matejovce
    КОМПЛЕКТАЦИЯ фильтр для отопления с манометром и краном для чисткивильтр гвскомнатный термостат Преимущества котла Иммергаз NIKE STAR 24 4R Самый высокий класс защиты котлов - IPX5D.Встроенный 3-х скоростной циркуляционный насос.Функция самодиагностики неисправностей.Низкий уровень шума - 36 дБ.Не требует стабилизатора напряжения.Функция защиты от замерзания.Наличие битермического теплообменника.Можно использовать антифриз для системы отопления.Обслуживаются по всей территории Республики Беларусь. Заключены договоры с Горгазами страны. На сегодняшний день насчитывается порядка 250 сервисных центров и 200 складов запасных частей.Сделано в Европе (Итальянский бренд, завод в Словакии). Двухконтурный газовый котел Immergas NIKE STAR 24 4R разработан с открытой камерой сгорания, устанавливается на стену. Используется для отопления помещений от 50 до 240 кв.м и производства ГВС. Качество:Сделан в Европе из высококачественных материалов, что обеспечит Вам комфорт и надежность на долгое время.Быстрый нагрев ГВС:Из-за наличия битермического теплообменника, газовый котел Immergas NIKE STAR 24 4R в сжатый срок нагревает горячую воду до нужной температуры. Удобство:Данная модель удобна в использовании, т.к. у котла есть цифровая панель управления, которая отображает состояние котла, можно регулировать температуру отопления и температуру горячей воды. Благодаря наличию микропроцессора, у котла есть функция диагностики неисправностей.Защищен от замерзанияНастенный двухконтурный газовый котел c открытой камерой сгорания Immergas NIKE STAR 24 4R защищен от замерзания: когда температура воды в котле ниже 4 градусов, автоматически включается насос и горелка.Комплектация и размеры:Комплектация: газовый котел Immergas NIKE STAR 24 4R, фильтр для холодного водоснабжения, фильтр для отопления, термостат. Котел имеет небольшие размеры и вес: размеры (ВхШхГ) - 756х440х240, вес 26 килограмм.ГАРАНТИЯ НА ГАЗОВЫЙ КОТЕЛ IMMERGAS NIKE STAR 24 4R – 5 ЛЕТ!
    Газовый котел Immergas NIKE STAR 24 4R купить в Мозыре с доставкой и рассрочкой платежа.
  • Отзывы

    Имя:
    Прикрепить изображения
    Вопросы и Ответы:
    Имя:
    E-mail:
    Прикрепить изображения

    0 Вопросов
  • Условия доставки и оплаты

    Условия доставки Газовый котел Immergas NIKE STAR 24 4R в Мозырь
  • С этим товаром покупают

Гарантия и возврат

Амазонка бай реализует более 10 000 товаров надлежащего качества от проверенных поставщиков, зарекомендовавших себя как ТОП-производители. Гарантия производителя распространяется на гарантийный талон либо иной другой документ его заменяющий. 

В случае возникновения гарантийного случая необходимо обратиться в сервисный центр или в наш отдел по рекламациям.

Какие гарантийные сроки?

В основном на продукцию распространяется гарантия от 12 месяцев до 25 лет в зависимости от срока, предусмотренного производителем. Данная информация указана в гарантийном талоне либо ином заменяющем его документе.

За более подробной информацией и разъяснениями можете обращаться к нам по телефону +375 (29) 8000 226. Всегда рады помочь!

Какая информация должна быть в гарантийном талоне?

Гарантия содержит информацию:

  • дата реализации;
  • модель товара;
  • серию и номер.

В талоне проставляется штамп торгующей организации и печать ответственного лица.

Легкий возврат товара

Возврат некачественного товара.

Для возврата приобретенного недоброкачественного товара будет необходимо:

  • связаться по телефону +375 (29) 8000 226 с отделом по рекламациям, объяснить причину поломки;
  • предоставить документы, свидетельствующие о приобретении: кассовый чек, товарный чек, ТН, договор поставки и иные документы, доказывающие факт приобретения данного товара;
  • оформление возврата некачественного товара  - заявление;
  • согласование возврата денежных средств либо замену товара.
Требования потребителя о соразмерном уменьшении покупной цены товара ненадлежащего качества, возмещении расходов на устранение недостатков товара потребителем или третьим лицом, расторжении договора розничной купли-продажи и (или) возврате уплаченной за товар ненадлежащего качества денежной суммы подлежат удовлетворению продавцом (изготовителем, поставщиком, представителем) незамедлительно. В случае, если удовлетворить требования потребителя незамедлительно не представляется возможным, максимальный срок для удовлетворения требований потребителя не может превышать семи дней со дня предъявления соответствующего требования, а при необходимости проведения экспертизы – четырнадцати дней.

Возврат товара надлежащего качества.

В случае возврата доброкачественного товара, потребитель осуществляет возврат в течение 14 календарных дней с момента приобретения. Товар должен быть в заводской упаковке, без повреждений, содержать все сопроводительные документы (гарантийный талон, паспорт изделия и т.д.) и иметь такой же вид, как при покупке.
Обращаем Ваше внимание, что возврат возможен не на все категории товаров. Перечень непродовольственных товаров надлежащего качества, не подлежащих обмену и возврату, утвержден Постановлением Совета Министров Республики Беларусь № 778 от 14.06.2002 года. (Изделия под заказ, отрезные товары)
Остались вопросы? Позвоните нам для уточнения +375 (29) 8000 226.

Простая замена товара

Я могу вернуть доброкачественный товар?

Да. Если Вы приняли решение вернуть качественный товар, такая возможность действует в течение 14 календарных дней со дня приоретения. Внимание! Товар должен иметь продажный вид как при покупке, без следов эксплуатации.
Однако вернуть можно не все покупки. Перечень непродовольственных товаров надлежащего качества, не подлежащих обмену и возврату, утвержден Постановлением Совета Министров Республики Беларусь № 778 от 14.06.2002 года. Обмен и возврат продукции осуществляется на территории продавца.

Как вернуть недоброкачественный товар?

Для возврата товара ненадлежащего качества требуется:

  • обратиться к торговой организации;
  • предъявить документы, подтверждающие покупку;
  • обязательно предоставить заявление на возврат;
  • обговорить возврат средств с менеджером.

Необходимо некачественный товар вернуть по месту расположения продавца.

Кредит и рассрочка товара